Alle Unterlagen im Überblick


Dokumentation
Grundrisse
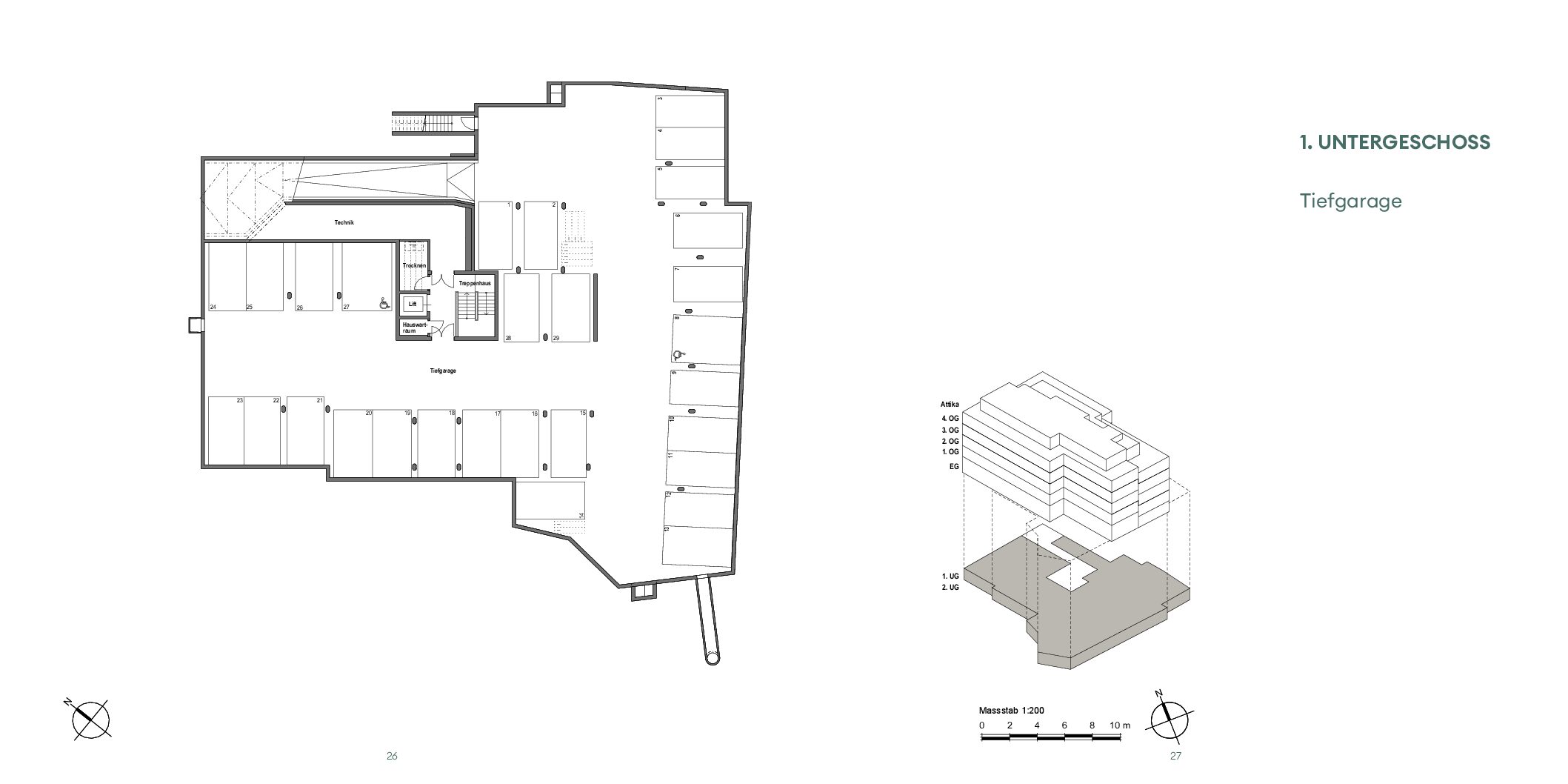
Keller
Einstellhalle
Umgebungsplan
Kurzbaubeschrieb