Alle Unterlagen im Überblick


Dokumentation
Kurzinfo
Anmeldeformular
Grundrisse
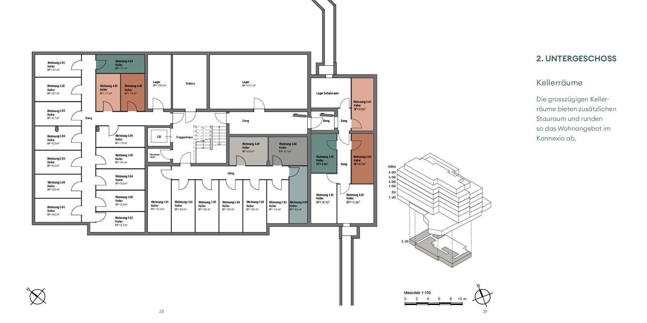
Keller
Einstellhalle
Umgebungsplan
Kurzbaubeschrieb